Kaminbausatz CAMINA S16 4 kW Speicheranlage
Wenn Sie Wert auf größtmögliche Gestaltungsfreiheit legen und sich dabei noch Eleganz und Wärmespeichereigenschaften wünschen, ist Beton der perfekte Werkstoff. Diese Speicheranlage CAMINA S16 besteht aus einer Verkleidung aus Wärmebeton, der den gewünschten Schmid Kamineinsatz Ekko U 45(34)51 umhüllt. Die Wärmebetonverkleidung hat hervorragende Wärmespeichereigenschaften, so wird die erzeugte Wärme des Holzfeuers langsam an den Raum abgegeben und Sie können die wohltuende und behagliche Wärme noch nach Abbrandende genießen. Den Bausatz gibt es in verschiedenen Ausführungen.
Aufgrund der modernen Linienführung verleiht der CAMINA S16 Speicheranlage Ihrem Aufstellraum ein stilvolles Ambiente. Egal wie Sie den Bausatz gestalten möchten, Ihren Fantasien sind dabei keine Grenzen gesetzt. Das wärmende und gemütliche Kaminfeuer können Sie in dem gewünschten „Rahmen“ präsentieren.
Lieferumfang des Kaminbausatz CAMINA S16:
- Kamineinsatz SCHMID Ekko U 45(34)51 h
- Speicheranlage
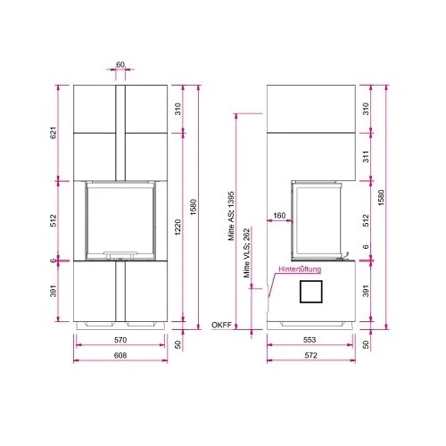
Maße Bausatz:
- Grundmodell: Höhe 1580 x Breite 608 x Tiefe 572 mm, Gesamtgewicht: 350 kg
- mit Podest H 230 geschlossen: Höhe 1810 x Breite 608 x Tiefe 572 mm, Gesamtgewicht: 385 kg
- mit Podest H 310 geschlossen: Höhe 1890 x Breite 608 x Tiefe 572 mm, Gesamtgewicht: 400 kg
- mit Podest H 310 offen: Höhe 1840 x Breite 608 x Tiefe 572 mm, Gesamtgewicht: 400 kg
Eigenschaften des Kamineinsatzes Ekko U 45(34)51:
- Nennwärmeleistung: 4 kW
- Türhöhe: 510 mm
- Türbreite: 340 / 450 / 340 mm
- Schiebetür
SMR – Schmid Multi-Regelung:
Die Schmid Multi-Regelung ist eine Abbrandsteuerung, mit der Sie verlängerte Abbrandzeiten und somit einen geringeren Brennstoffverbrauch, optimale Emissionswerte und eine deutlich längere Gluthaltung erreichen. Diese können wir Ihnen gerne auf Anfrage mit anbieten.
Kaminbausatz CAMINA S16 Speicheranlage 4 kW
sicher und bequem online kaufen bei Feuerdepot.de, dem Kamin Shop.

















Rezensionen
Es gibt noch keine Rezensionen.